ვილლა 29

კერძო რეზიდენცია ჩამოყალიბებულ უბანში, სადაც არქიტექტურა, სივრცე და გარემო ერთიან ლოგიკაში ფუნქციონირებს.

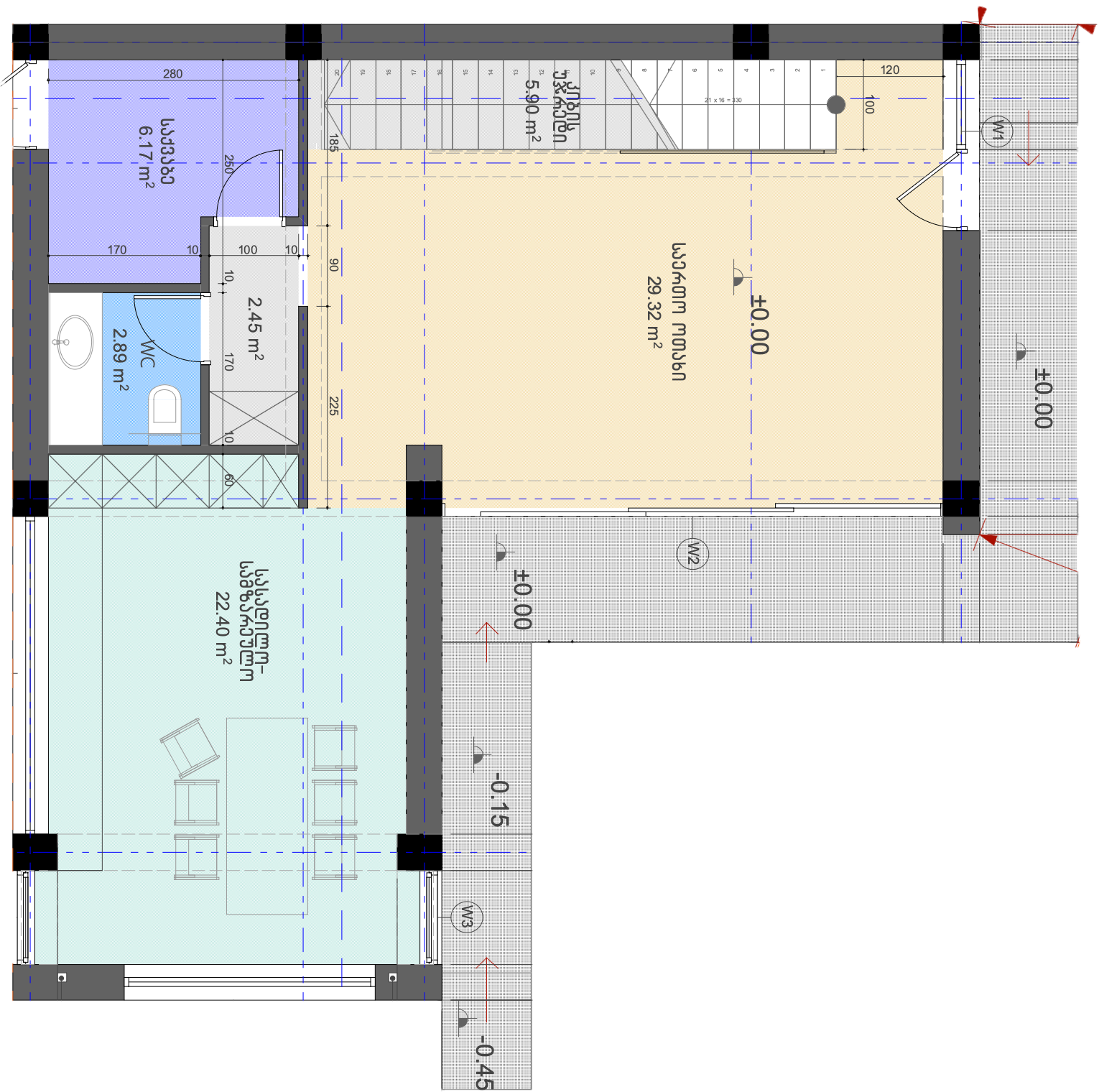
ნაკვეთის ფართობი: 600 მ²;

სახლის საერთო ფართობი: 220 მ²;

3 სართული.

ფასადი მოპირკეთებულია ბუნებრივი ტრავერტინით.

სახლი დაერთებულია ყველა ცენტრალურ კომუნალურ ქსელთან. ობიექტი გამოდგება, როგორც საცხოვრებლად, ასევე საინვესტიციოდ.

Your life on Top with Tsavkisi Hills

კეთილი იყოს თქვენი მობრძანება Tsavkisi Hills-ში — პრემიუმ საცხოვრებელ პროექტში, რომელიც 4 ჰექტარზეა განთავსებული და აერთიანებს 43 მიწის ნაკვეთს და თანამედროვე ვილებს, რომლებიც ჰარმონიულად ერწყმის ბუნებას და ქალაქს.

— 4 ჰექტარზე დაგეგმილი საცხოვრებელი სივრცე

— 43 მიწის ნაკვეთი

— თანამედროვე კერძო ვილები

— ყველა ცენტრალური კომუნიკაცია მიყვანილია (გაზი, წყალი, კანალიზაცია, ელექტროენერგია)

— არასასოფლო-სამეურნეო მიწის სტატუსი

პროექტი მდებარეობს თბილისის ცენტრიდან მხოლოდ 10 წუთის სავალზე და გთავაზობთ სიმშვიდის, პანორამული ხედებისა და ქალაქის ინფრასტრუქტურასთან სწრაფი წვდომის იშვიათ ბალანსს.

Tsavkisi Hills-ის გუნდი დაგეხმარებათ, რომ შეძენის პროცესი იყოს გამჭვირვალე შეუფერხებელი.

Location

 

Contact Us

Leave your contact details, and our manager will get in touch with you shortly.

Tsavkisi Hills
MPHX+HV, Tbilisi, Georgia

Working Hours:
Monday – Sunday
10:00 – 20:00

Phone:
+995 (511) 22-99-77